住まいを探すわかやま住まいポータルサイト

物件詳細情報

物件IDA-1542

登録者高野町

  • 区分売買
  • 所在地高野町花坂
  • 価格998万円
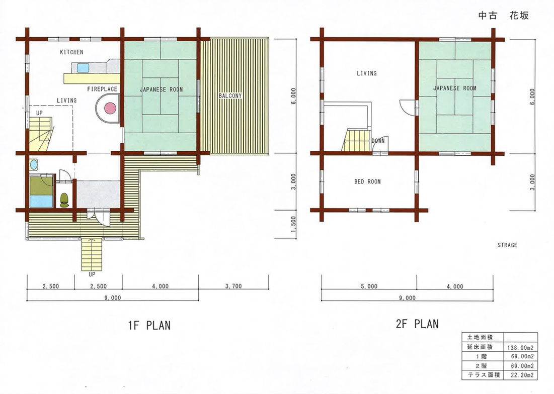
  • 物件区分一戸建て
  • 間取り3LK
    1階:和室1、2階:和室1洋室1
  • 建築年1998年
  • 建物面積138㎡
  • 土地面積
  • 建物構造木造
  • 建物階層2階建以上
  • ペット飼育
  • 交通紀伊細川駅 距離8.0㎞
  • 駐車場
  • 設備電気:引き込み済み / ガス:プロパンガス / 風呂:灯油 / 水道:簡易水道 / 下水道:U字側溝 / トイレ:汲取り(洋) / 庭:有
  • 主要施設紀伊細川駅 距離8.0㎞
  • 特記事項
  • 備考

最終更新日:2025年11月05日

初めて問い合わせされる方は、
先に利用者登録を行ってください。

利用者登録をする

物件へのお問い合わせ

利用者登録番号

※登録された利用者登録番号が不明な場合はわかやま移住定住支援センターあて連絡してください。

TEL:073-422-6110

E-mail:wakayamagurashi@wsk.or.jp

お名前
フリガナ
メールアドレス
電話番号
お問い合わせ内容
その他ご連絡事項

お電話でのお問い合わせ

0736-56-2780

業務時間 9:00~17:00 / 
休 日 土日祝