住まいを探すわかやま住まいポータルサイト

物件詳細情報

  • 区分売買
  • 所在地すさみ町周参見
  • 価格500万円
  • 物件区分一戸建て
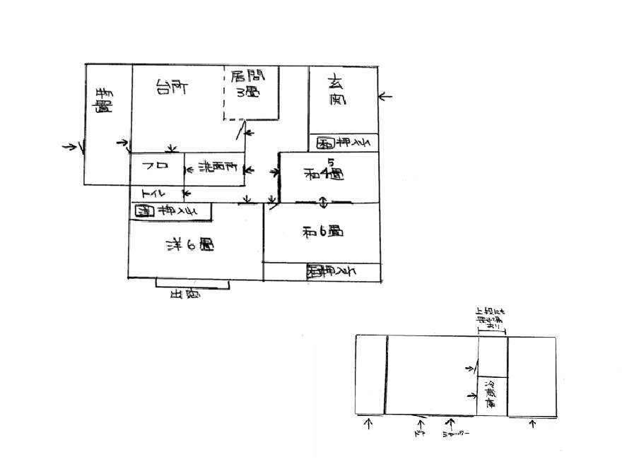
  • 間取り3DK
    洋室1和室2
  • 建築年1997年
  • 建物面積86.45㎡
  • 土地面積633㎡
  • 建物構造木造
  • 建物階層平屋建て
  • ペット飼育
  • 交通周参見駅 距離3.1㎞
  • 駐車場
  • 設備電気:引き込み済み / ガス:プロパンガス / 風呂:灯油 / 水道: / 下水道: / トイレ:汲取り(洋) / 庭:有 / 農地:有2906㎡
  • 主要施設周参見駅 距離3.1㎞ / 小学校:3.1km / 中学校:2.5km / スーパー:2.3km
  • 特記事項倉庫、畑も一緒に購入してもらいたい。価格相談可。敷地内の一部の家屋が親族の所有物である。
  • 備考築28年ではありますが目立った損傷がありません。倉庫は3つに分かれており、中には農作物を入れておける冷蔵庫・物置もあります。
    裏の畑には、ビシャコ、柚子の木等があり、出荷が可能な木々に育ってます。

最終更新日:2026年01月28日

初めて問い合わせされる方は、
先に利用者登録を行ってください。

利用者登録をする

物件へのお問い合わせ

利用者登録番号

※登録された利用者登録番号が不明な場合はわかやま移住定住支援センターあて連絡してください。

TEL:073-422-6110

E-mail:wakayamagurashi@wsk.or.jp

お名前
フリガナ
メールアドレス
電話番号
お問い合わせ内容
その他ご連絡事項

お電話でのお問い合わせ

0739-55-4801

業務時間 8:30~17:15 / 
休 日 土日祝