住まいを探すわかやま住まいポータルサイト

物件詳細情報

物件IDA-1583

登録者岩出市

  • 区分売買
  • 所在地岩出市曽屋
  • 価格800万円
  • 物件区分一戸建て
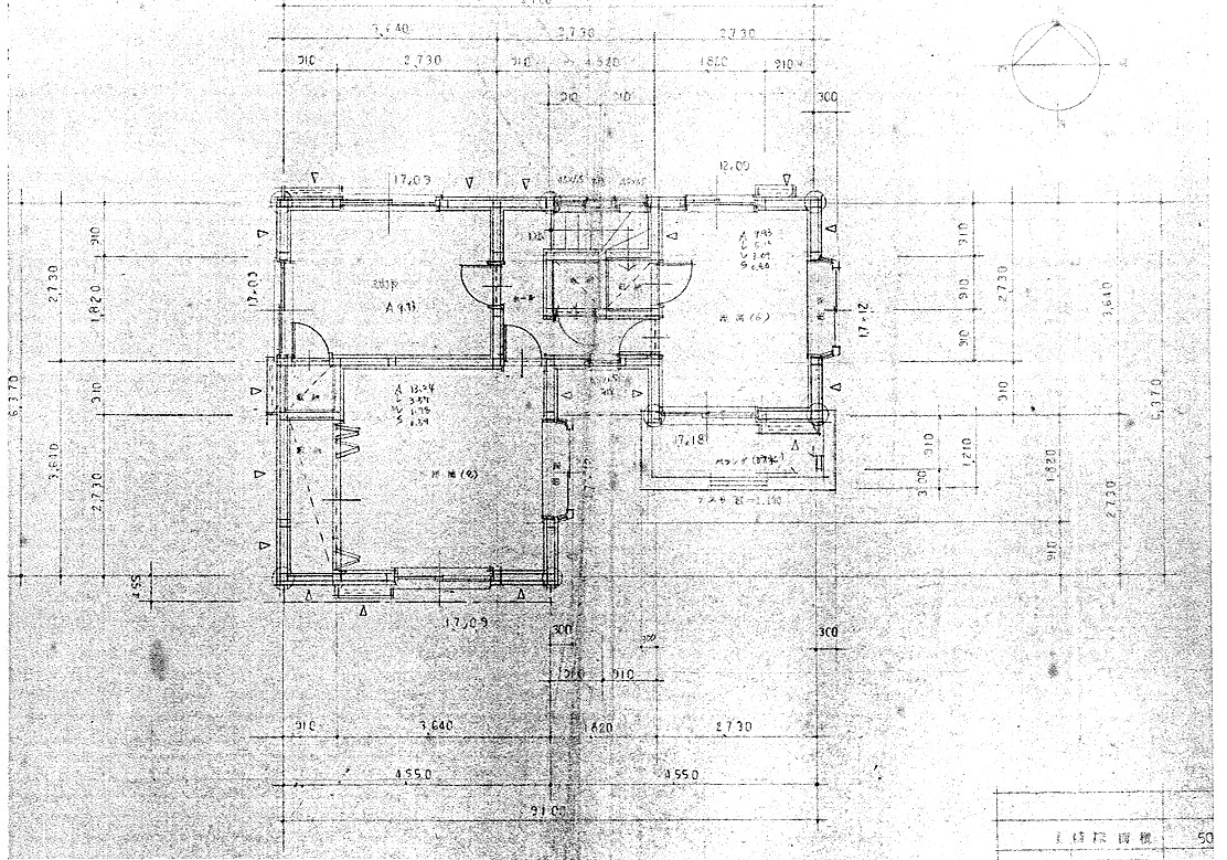
  • 間取り4LDK
    1階:和室1、2階:洋室3
  • 建築年1992年
  • 建物面積93.98㎡
  • 土地面積99.72㎡
  • 建物構造木造
  • 建物階層2階建以上
  • ペット飼育
  • 交通岩出駅 距離2.6㎞
  • 駐車場
  • 設備電気:引き込み済み / ガス:集中プロパン / 風呂:ガス / 水道:上水道 / 下水道:下水道 / トイレ:水洗(洋) / 庭:有
  • 主要施設岩出駅 距離2.6㎞ / 総合病院:6.5km / 保育園:1.4km / 小学校:1.5km / 中学校:1.0km / スーパー:0.7km / コンビニ:0.6km
  • 特記事項・キッチン食洗器の部品不足
    ・キッチンの位置:図面は現況とは異なります(画像参照)
  • 備考現状で居住可能です。BS・CS視聴できます。
    スーパーが近く便利です。静かな住宅地です。

最終更新日:2026年01月28日

初めて問い合わせされる方は、
先に利用者登録を行ってください。

利用者登録をする

物件へのお問い合わせ

利用者登録番号

※登録された利用者登録番号が不明な場合はわかやま移住定住支援センターあて連絡してください。

TEL:073-422-6110

E-mail:wakayamagurashi@wsk.or.jp

お名前
フリガナ
メールアドレス
電話番号
お問い合わせ内容
その他ご連絡事項

お電話でのお問い合わせ

0736-62-2141

業務時間 8:45~17:30 / 
休 日 土日祝